Übersicht
- Kategorie
- Grundstück (Wohnbebauung)
Beschreibung
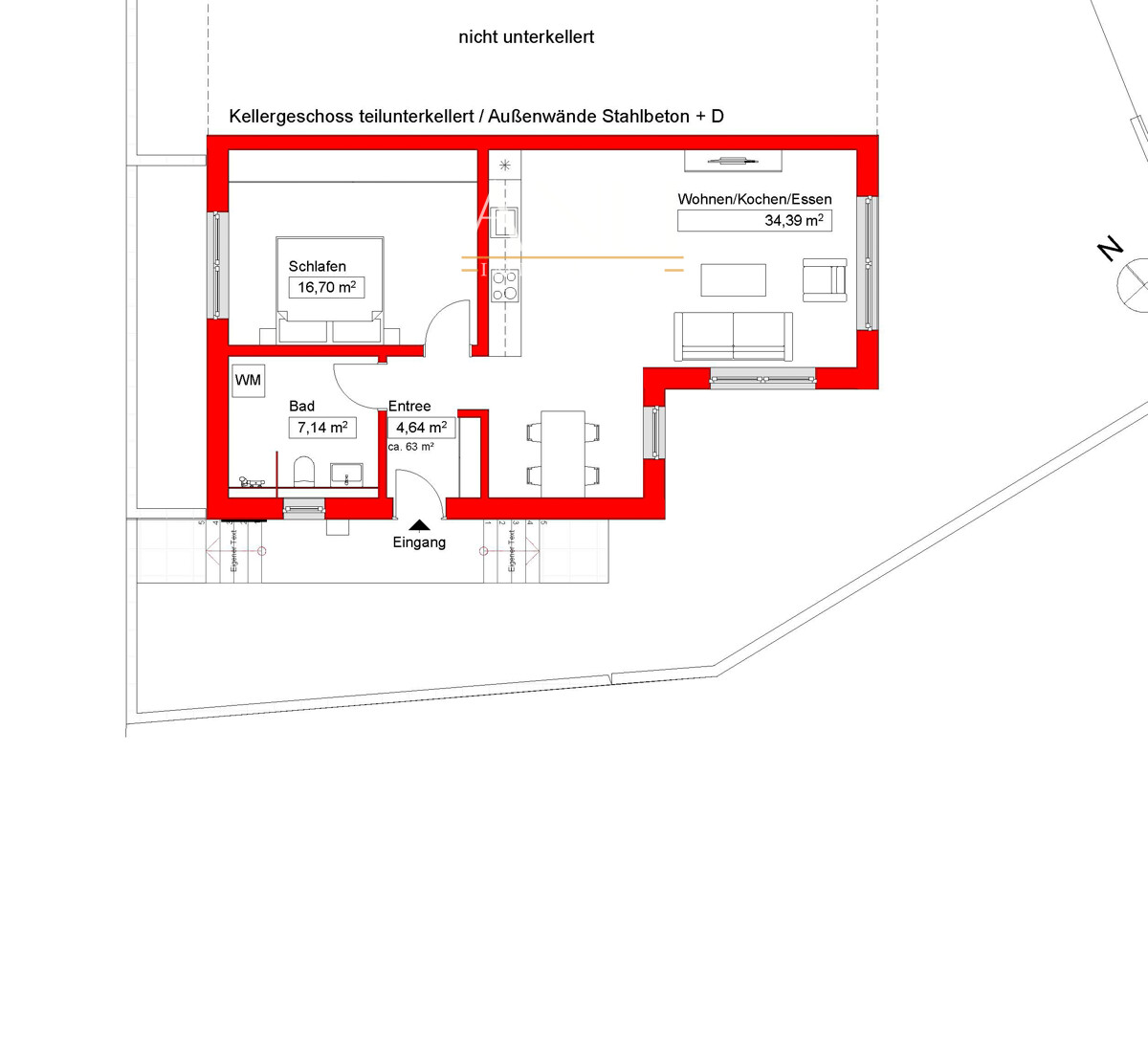
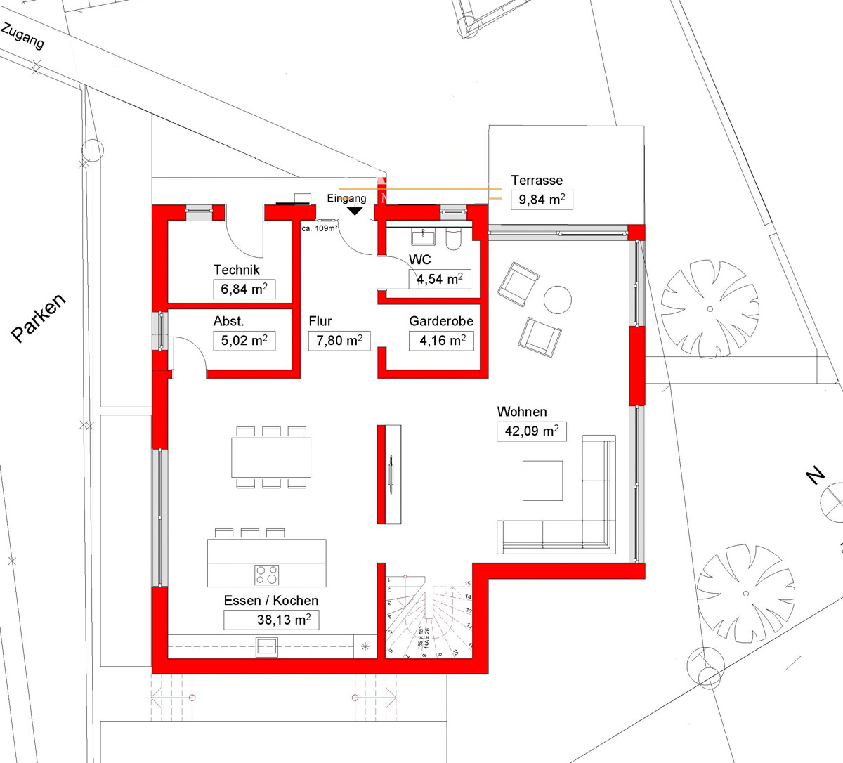
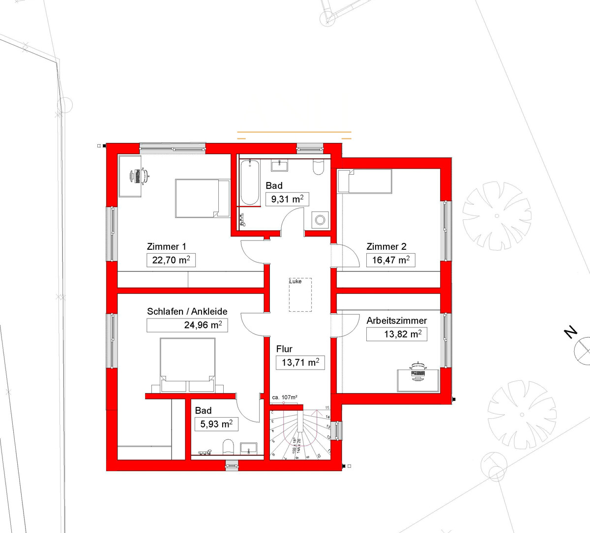
Dieses 482 m² große Baugrundstück in der Vorderen Bergstraße 6 in Syrgenstein bietet Ihnen eine besondere Gelegenheit: Es ist bereits durch eine Architektin projektiert und verfügt über einen genehmigten Bauantrag für ein modernes Wohnhaus mit Einliegerwohnung.
Für Sie bedeutet das: Sofortiger Baustart und klare Planungssicherheit. Die vorhandene Planung ist im Kaufpreis enthalten und erleichtert Ihnen den direkten Einstieg in Ihr Bauvorhaben.
Die Grundrisse sind durchdacht und flexibel nutzbar, ob für Ihre Familie, für mehrere Generationen, mit zusätzlichem Platz fürs Homeoffice oder als rentable Mieteinheit.
Ein weiteres Plus: Der Kauf ist für Sie provisionsfrei, da der Verkäufer die Maklercourtage übernimmt.
Lage
Das Grundstück liegt in Syrgenstein, einer ruhigen und familienfreundlichen Wohngegend im Landkreis Dillingen an der Donau. Einkaufsmöglichkeiten, Kindergarten, Schule, Ärzte sowie Cafés und Restaurants befinden sich in der Nähe und sind bequem erreichbar.
Über die B16 gelangen Sie schnell nach Dillingen, Gundelfingen und Lauingen. Die Autobahn A7 bietet eine gute Anbindung in Richtung Ulm, Würzburg und ins Allgäu.
Die Umgebung überzeugt zudem durch ihre naturnahe Lage: Felder, Wälder und Radwege laden zu Spaziergängen, Sport und Erholung im Grünen ein. Damit verbindet der Standort Ruhe, Natur und eine solide Infrastruktur in idealer Weise.
Ausstattung
– Provisionsfrei für Käufer –
– Grundstücksgröße: 482 m²
– Projektiert durch Architektin (Haus mit Einliegerwohnung)
– Bauantrag genehmigt → sofortiger Baustart möglich
– Durchdachte Grundrisse für modernes Wohnen
– Flexible Nutzung: Familie, Mehrgenerationen, Homeoffice oder Mieteinnahmen
– Ruhige und familienfreundliche Wohnlage
Sonstiges
Dieses Grundstück wird für den Käufer provisionsfrei vermittelt, die Maklerprovision übernimmt der Verkäufer.
Für eine zügige Bearbeitung bitten wir Sie, Ihre Anfrage mit vollständigen Kontaktdaten (Name, Anschrift und Telefonnummer) zu stellen.
Haben wir Ihr Interesse geweckt? Dann nehmen Sie Kontakt mit uns auf, wir beraten Sie gerne und vereinbaren einen persönlichen Besichtigungstermin.
Alle Angaben beruhen auf den Informationen des Eigentümers und der zuständigen Behörden. Eine Gewähr für die Richtigkeit und Vollständigkeit übernehmen wir nicht.


