Übersicht
Beschreibung
Viel Raum für Ideen – flexibel nutzbare Gewerbefläche in zentraler Lage von Illerkirchberg
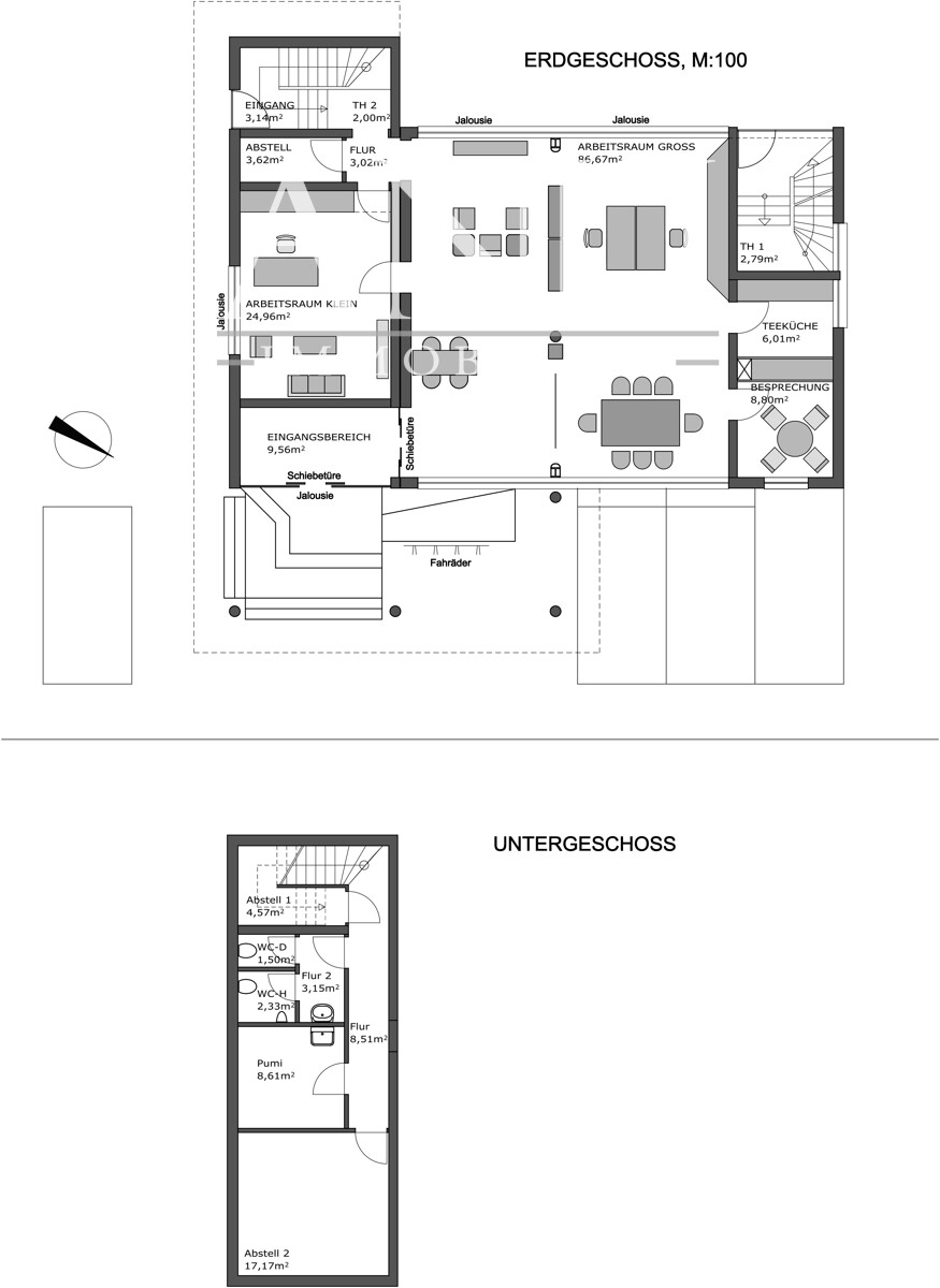
Diese großzügige Gewerbeeinheit steht mit ca. 193 m² im Erd- und Untergeschoss zur Vermietung. Die ehemalige Bankfiliale überzeugt durch eine durchdachte Raumstruktur und einen repräsentativen Charakter.
Im Erdgeschoss erwartet Sie ein weitläufiger, offen gestalteter Hauptbereich mit ca. 86,67 m², der vielfältige Nutzungskonzepte ermöglicht – ob als moderne Bürofläche, Praxis, Beratungszentrum, Studio, Showroom oder Dienstleistungsstandort. Ergänzt wird die Fläche durch einen separaten Arbeitsraum, einen Besprechungsraum sowie eine Teeküche.
Der barrierefreie, überdachte Haupteingang mit Rampe und automatischer Glastür sorgt für einen komfortablen Zugang und eine professionelle Empfangssituation für Kunden, Mandanten oder Patienten. Zusätzlich steht ein separater Personaleingang zur Verfügung, der eine klare Trennung zwischen Kunden- und Mitarbeiterbereich ermöglicht.
Das Untergeschoss bietet weitere Nutzflächen mit Lager-, Archiv- und Funktionsräumen sowie WC-Anlagen. Diese Ebene eignet sich ideal für interne Abläufe, Lagerung oder ergänzende Arbeitsbereiche.
Die vorhandene Struktur bietet eine solide Grundlage und eröffnet vielseitige gewerbliche Nutzungsmöglichkeiten. Hier entsteht Raum für Unternehmen, die ihre Vision in einem gewachsenen Umfeld realisieren möchten.
Die Vermietung erfolgt provisionsfrei für den Mieter.
Lage
Die Gewerbefläche befindet sich in Illerkirchberg in zentraler Lage mit guter Erreichbarkeit. Die Position innerhalb des Ortes ermöglicht eine solide Sichtbarkeit sowie eine komfortable Anfahrt für Kunden, Mitarbeitende und Geschäftspartner – sowohl mit dem Pkw als auch über den öffentlichen Nahverkehr.
Illerkirchberg liegt im Alb-Donau-Kreis, nur etwa 10 km südlich von Ulm. Die unmittelbare Nähe zur Wirtschaftsregion Ulm/Neu-Ulm mit ihren Unternehmen, Kliniken, Hochschulen und Behörden bietet ideale Voraussetzungen für unternehmerische Entwicklung und Mitarbeitergewinnung.
Die Autobahnen A7 und A8 sind in kurzer Fahrzeit erreichbar und sorgen für eine sehr gute regionale und überregionale Anbindung.
Einkaufsmöglichkeiten, Bäckereien und Dienstleister befinden sich im Ort oder im nahegelegenen Ulm. Die Kombination aus ruhigem Umfeld, guter Infrastruktur und stadtnaher Lage macht den Standort besonders attraktiv für Büro-, Praxis- oder dienstleistungsorientierte Nutzung.
Ausstattung
– Großzügiger, helle, offener Hauptarbeitsbereich im EG
– Integrierte Sonnenschutzanlagen (Plissees)
– Barrierefreier überdachtet Haupteingang mit Rampe
– Automatische Glaseingangstür
– Separater Personaleingang
– Teeküche
– WC-Anlage im UG
– Lager- und Funktionsräume im UG
– Praktische Einbauschränke
– KFZ-Stellplätze vorhanden
– Ehemalige Bankstruktur – solide, massive Bauweise
Die klare Raumaufteilung bietet eine ideale Grundlage für moderne Büro-, Praxis- oder Dienstleistungsnutzungen. Individuelle Anpassungen sind je nach Nutzungskonzept möglich.
Sonstiges
Anfragen werden nur mit vollständigen Kontaktdaten mit Namen, Anschrift und Telefonnummer beantwortet.
Haben wir Ihr Interesse geweckt? Dann vereinbaren Sie gleich einen Besichtigungstermin mit uns.
Alle Angaben ohne Gewähr. Unsere Angaben beruhen auf Informationen des Eigentümers, der Verwaltungen etc. Für die Richtigkeit und Vollständigkeit kann daher keine Haftung übernommen werden.



















